Aktuelles
Termine
Publikationen
Friedbert Greif und Svenja Knuffke haben darin gemeinsam mit Martin Harter, dem Geschäftsbereichsvorstand für Stadtplanung und Bauen der Stadt Essen, einen Beitrag zum Kapitel „Räume, Areale und Quartiere der Konversion“ verfasst. Unter dem Titel „Deckel A40: Impulse zur Transformation“ wird beschrieben, wie mit der entsprechenden Machbarkeitsstudie ein Beitrag für eine innovative, nachhaltige und zukunftsorientierte Weiterentwicklung Essens gelingen kann.
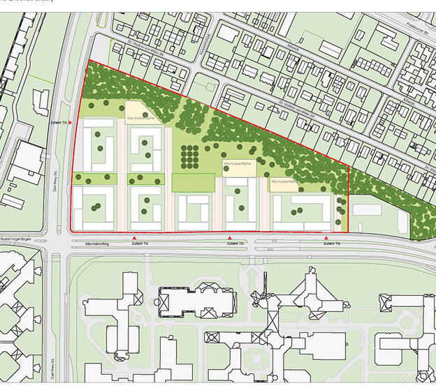
AS+P hatte im Zuge der Bewerbungsinitiative zur Ausrichtung der Olympischen und Paralympischen Spiele 2032 der Region Rhein-Ruhr für die Stadt Essen eine städtebauliche Machbarkeitsstudie für ein olympisches Dorf auf dem Deckel der Bundesautobahn A40 erarbeitet. Im Fokus der Planungen stand allerdings die Nach- bzw. Hauptnutzung als Stadtquartier.
Damit hat die seit Jahrzehnten bestehende Idee der Stadtreparatur durch eine Überdeckelung der A40 einen neuen Impuls erhalten. Ziel ist die Vernetzung heute getrennter Stadträume und die Transformation von der autogerechten zur aktiven lebenswerten Stadt. Die Überdeckelung der A40 ist ein zukunftsweisendes Projekt zur Entwicklung integrierter Lagen, zur Verbesserung der Wohnumfeldqualität und zur Schaffung von neuem Wohnraum bei immer knapper werdenden Flächenressourcen. Dabei gilt, schon heute die Themen von morgen mitzudenken. Dazu gehören Klimaresilienz und Nachhaltigkeit ebenso wie umweltschonende Formen der Mobilität sowie die unterschiedlichen Anforderungen an Wohnen, Arbeiten und Freizeit in den kommenden Jahrzehnten.
Die vorliegende Publikation greift spannende Aspekte auf, die Essen als Stadt im Aufbruch kennzeichnen. Die Entwicklung Essens von der Industriestadt zur Grünen Hauptstadt Europas sowie veränderte Anforderungen und Prämissen der Stadtplanung werden durch Themen, Projekte und Ideen, die wichtige Wegmarken setzen, beleuchtet.
Link zur Buchpräsentation und Pressemeldung der Stadt Essen hier
ISBN: 978-398741-141-0
Um die Verbandsgemeinden Altenahr und Adenau bei ihren Kommunalentwicklungsprozessen und in der Umsetzung des Wiederaufbaus zielgerichtet zu unterstützen, hat das rheinland-pfälzische Innenministerium die sogenannten Kommunal-Koordinatoren geschaffen. In dieser Rolle ist AS+P Albert Speer + Partner GmbH seit Anfang 2024 tätig. Nun legen die Koordinatoren die Bandbreite ihrer Projekte dar und, wie sie planerisches Know-How und Organisation für das langfristige Wohl der Gemeinde und Menschen einbringen können.
2024 / Hrsg.: Rheinland-Pfalz Ministerium des Inneren und für Sport / Der Wiederaufbau Einblicke und Ausblicke / S. 66-67 / www.mdi.rlp.de/
Wie können Logistikstandorte möglichst effizient und klimafreundlich gestaltet werden, und wie können die Kommunen diese Ansätze vorantreiben und den Ansiedlungsprozess entsprechend steuern? In der Ausgabe der Fachzeitschrift PLANERIN stellt Christian Hübner, Projektleiter bei AS+P Albert Speer + Partner GmbH, die Haupterkenntnisse eines einjährigen Forschungsprojektes sowie den daraus resultierenden Handlungsleitfaden als Arbeitshilfe für Kommunen vor.
2024 / © SRL / Heft-Nr. 3_24 / Hrsg.: Vereinigung für Stadt-, Regional- und Landesplanung (SRL) e.V., Schrammstr. 8, 10715 Berlin / S. 55-56 / www.srl.de
Downloads
Juni 2010 | Studie
Städtebauliches Entwicklungskonzept für den Innenstadtstandort der Technischen Universität Chemnitz
Februar 2009 | Ausführliche Denkschrift
„Frankfurt für Alle“ - Handlungsperspektiven für die inter-nationale Bürgerstadt Frankfurt am Main
Februar 2009 | Kurzfassung
„Frankfurt für Alle“ - Handlungsperspektiven für die internationale Bürgerstadt Frankfurt am Main
August 2010 | Studie





