Bebauungsplan „Stadtquartier Süd“ erfolgreich zur Satzung geführt

Im März wurde der von AS+P erarbeitete Bebauungsplan Nr. 55 von der Stadtverordnetenversammlung der Stadt Neu-Isenburg zur Satzung beschlossen.
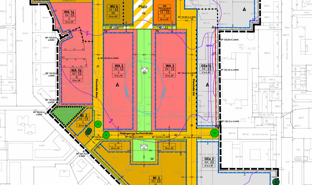
Das südlich des Stadtzentrums gelegene Gebiet wird seit Jahren nur eingeschränkt gewerblich genutzt – viele Flächen liegen brach. Daher gab die Stadt Neu-Isenburg einen Rahmenplan in Auftrag, der 2012 bis 2014 im Zuge eines mehrstufigen Planungsprozesses unter aktiver Einbindung der Öffentlichkeit entwickelt wurde. Auf der Basis dieses Rahmenplanes erarbeitete AS+P den Bebauungsplan für das Gebiet, das von der Schleussnerstraße, der Hugenottenallee und der Frankfurter Straße begrenzt wird.
Das zukünftige, gemischtgenutzte Quartier soll Wohnraum für rund 1.800 Menschen sowie rund 2.000 Arbeitsplätze schaffen. Mit seinen Büro- und Wohngebäuden, Gastronomie- und Kultureinrichtungen wie auch Freiflächen soll es sowohl Bewohnern als auch Besuchern eine hohe Aufenthaltsqualität bieten. Erste Gebäude sollen im Jahr 2023 stehen, so die Stadt Neu-Isenburg. Zum Projekt

Luftbild Stadtquartier Süd © Hessische Verwaltung für Bodenmanagement und Geoinformationen