Parktower
Frankfurt am Main, 2003 - 2007
Totalsanierung, Umbau und Erweiterung eines Bürohochhauses der 70er Jahre in zentraler Innenstadtlage, neues Fassadenkonzept
Nutzungsschwerpunkte
Architektur
BGF
24000 qm
Zeitraum
2003 - 2007
Auftraggeber
HOCHTIEF Construction AG

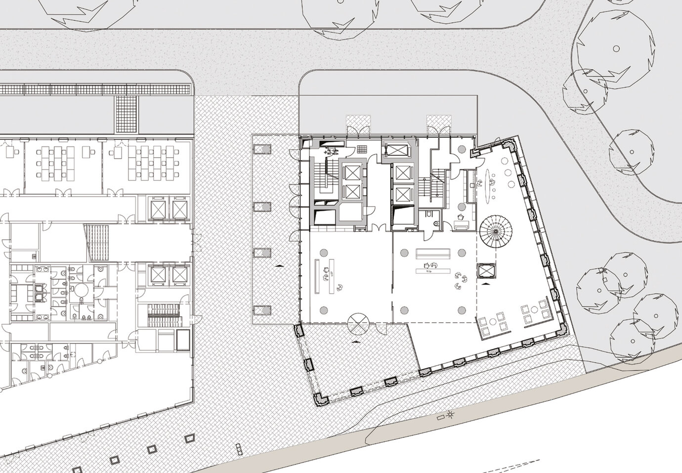
Grundriss
Altbau mit neuem Kleid Das ehemals unter dem Namen SGZ-Hochhaus bekannte schlanke Gebäude gegenüber der Alten Oper gehört zu den Pionierbauten, die einst die Skyline von »Mainhattan« mitbegründeten. Bereits 2003 wurde der 1972 errichtete Büroturm am Rand des Frankfurter Bankenviertels um einen von AS+P geplanten und realisierten Anbau erweitert. Weil eine Sanierung des Hochhauses innerhalb des Bestandsvolumens nicht möglich war, entschied sich der Bauherr für eine Kernsanierung und eine Erweiterung. Bestand und Erweiterung setzen sich in Kubatur und Fassadenausbildung klar voneinander ab und reagieren differenziert auf die städtebaulichen Gegebenheiten des direkten Umfelds. Der zum Park orientierte Altbau ist mit einer Ganzglasfassade, der Erweiterungsbau dagegen in den, rund um den Opernplatz vorherrschenden, hellen Naturstein gekleidet. Zweigeschossige Fenstergliederungen betonen die Vertikale und lassen den 115 Meter hohen Baukörper schlank und elegant erscheinen. Zwischen Hochhaus und Atriumhaus wird ein neuer Zugang zum Rothschildpark geschaffen, der über einen bestehenden Fußgängerübergang direkt an den Opernplatz angebunden ist. Das so neu geschaffene, repräsentative Ensemble wurde Ende 2007 fertig gestellt.

Fassade

Fassade

Fassade

Fassade

Fassade

Fassade

Fassade

Fassade