Westdeutsche ImmobilienBank Rheinland-Pfalz
Mainz, 1998 - 2000
Neubau eines Verwaltungsgebäudes; 1. Preis im eingeladenen Wettbewerb
Nutzungsschwerpunkte
Architektur
BGF
19000 qm
Zeitraum
1998 - 2000
Auftraggeber
Sedum Grundstücksverwaltungsgesellschaft mbH & Co. Vermietungs KG

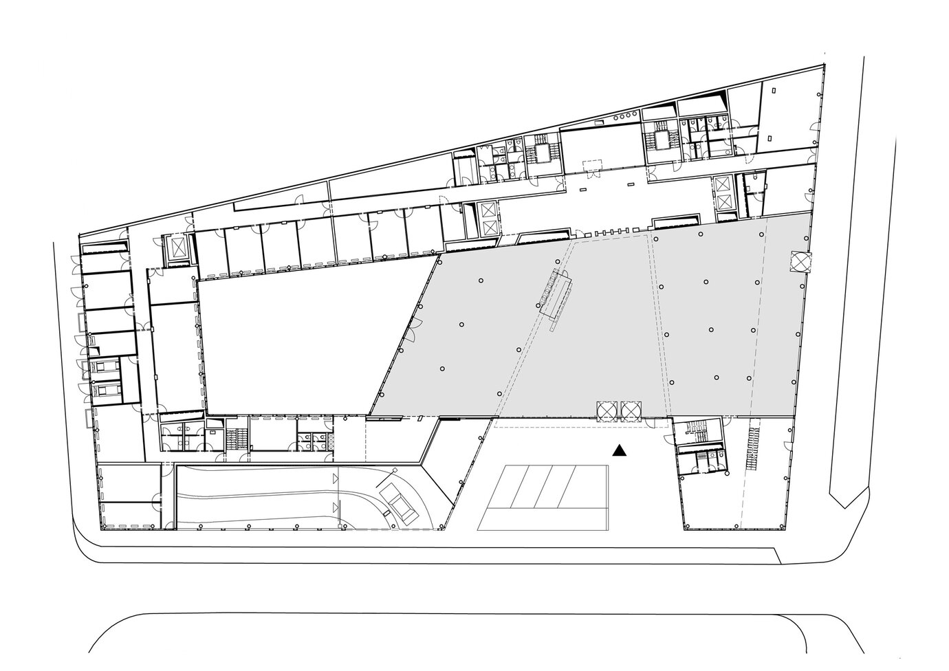
Grundriss Erdgeschoss
Offen und elegant präsentiert sich das neue Verwaltungsgebäudes der Westdeutschen ImmobilienBank und der Landesbank Rheinland-Pfalz im Zentrum von Mainz. Das Konzept von AS+P konnte sich 1997 in einem eingeladenen Wettbewerbsverfahren durchsetzen. Sechs Vollgeschosse und ein Staffelgeschoss beschreiben als Grundrissfigur in etwa eine »9«. Charakteristisch für den Entwurf ist die Bezugnahme auf bestehende Gebäudefluchten und eine Fassadengestaltung von filigraner Transparenz und Leichtigkeit. Neben der transparenten Architektur zeichnet sich das Gebäude durch seine interaktive Gebäudetechnik aus. Die Bank legte besonderen Wert auf eine große Nutzungs- und Funktionsflexibilität bei gleichzeitigem Wunsch nach einer repräsentativen Adresse, einem umweltgerechten Energiesparkonzept sowie einer hohen Arbeitsplatzqualität mit optimaler Tageslichtausnutzung. Technische Besonderheit der Fassadenkonstruktion ist ein neuartiges Parallelausstellfenster, das eine zugfreie Lüftung bei gleichzeitiger Reduktion des Außenschallpegels ermöglicht und in dieser Größe erstmals zur Ausführung kam.

Ansicht von der Kreuzung Löwenhofstrasse/ Große Bleiche

Empfangsfoyer

Innenhof

Eingangsbereich bei Nacht