Bebauungsplan „Erbenheim Süd“
Wiesbaden, 2011 - 2019
Bebauungsplan zur Entwicklung eines gemischt genutzten Quartiers als Konversion eines ehemaligen Industrieareals, Koordination des Verfahrens und der Planungsbeteiligten
Nutzungsschwerpunkte
Bauleitplanung
Zeitraum
2011 - 2019
Auftraggeber
ITM Immobilien Treuhand Mainz GmbH

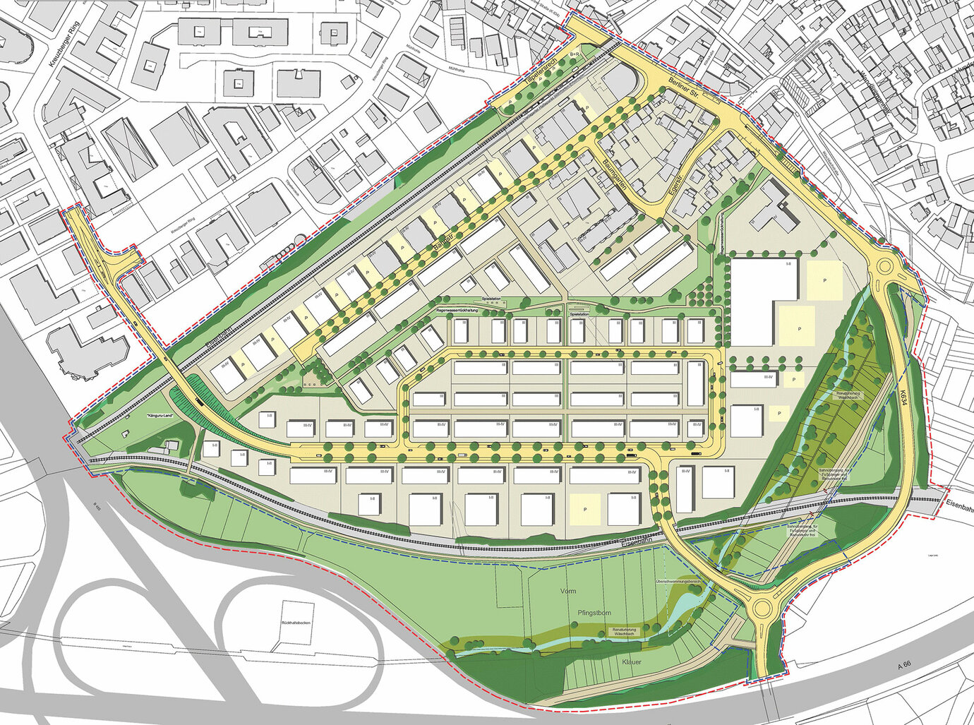
Der Gestaltungsplan diente als Grundlage für das Bebauungsplanverfahren
Die Landeshauptstadt Wiesbaden möchte das ehemalige Betriebsgrundstück der DYWIDAG, das jahrzehntelang als Betonfabrik und später als Betriebshof genutzt wurde und am südwestlichen Rand des Ortsbezirks Erbenheim liegt, städtebaulich neu ordnen und einer Neunutzung zuführen. Der Magistrat der Stadt Wiesbaden hatte AS+P dazu im Jahr 2010 mit der Erarbeitung eines Rahmenplans beauftragt. Ziel der Planung war es, die Nachfrage nach Wohnraum und Gewerbeflächen zu decken und gleichzeitig die Grundversorgung im Ortskern zu stabilisieren und aufzuwerten. Darüber hinaus sollte eine neue Haupterschließungsachse im Plangebiet den Ortskern entlasten. Der Rahmenplan wurde im September 2011 von der Stadtverordnetenversammlung als städtebauliches Entwicklungskonzept beschlossen und diente als Grundlage für den Bebauungsplan, der ebenfalls von AS+P erstellt und koordiniert wurde. Nach aktueller Planung sind im Plangebiet etwa 450 Wohnungen vorgesehen, die zum großen Teil im Geschosswohnungsbau realisiert werden – 73 davon werden gefördert. Eine vier Hektar umfassende Gewerbefläche, ein Lebensmittelmarkt, zwei Kindertagesstätten und eine temporäre Grundschule sind ebenfalls geplant. Eine großzügige, das Plangebiet querende Parkanlage schafft wohn- und arbeitsplatznahe Naherholungsräume mit generationenübergreifenden Aufenthalts- und Erholungsmöglichkeiten und rundet damit das Angebot im neuen, gemischt genutzten Stadtquartier ab. Der Bebauungsplan wurde im Juni 2019 von der Stadtverordnetenversammlung der Landeshauptstadt Wiesbaden zur Satzung beschlossen. Die ersten Baugenehmigungen werden in Kürze erwartet.

Impression vom abgeräumten Plangebiet im April 2019